Rodinný dom Michalovce
Jednoduchý úsporný rodinný dom, bez zbytočných priestorov, s jednoduchým konštrukčným riešením vo forme montovaného prízemného drevodomu.
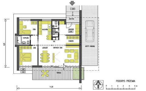
Navrhovaná je čistá, jednoduchá architektúra s plochou strechou. Obslužné funkcie s kumuláciou inštalačných rozvodov sú sústredené v technickom zádverí. Hlavné pobytové priestory sú vizuálne prepojené s exterierom zasklenými stenami, s priamym prepojením na slnečnú drevenú terasu...
Dispozícia objektu, hmotovo-priestorové riešenie ako aj návrh okien a zasklených stien sú podriadené funkčným a technologickým nárokom a podmienkam na dosiahnutie parametrov pasívneho domu. Samozrejmosťou je konštrukčné riešenie a návrh optimálnych tepelnotechnických parametrov pre predmetný typ domu.
Po konštrukčnej stránke je navrhovaný „klasický“ montovaný drevený konštrukčný systém stenovo skeletový so sendvičovými obvodovými stenami s kontaktným zateplením, kombinovaný s prevetrávaným obkladom. Strecha drevená plochá, dvojplášťová s foliovou krytinou a zásypom z triedeneho štrku. Povrchové úpravy priečelí sú navrhované v kombinácii silikátovej bielej ušľachtilej omietkoviny, fasádnych drevených plošných obkladov
a obkladu z umelého kameňa.
Zateplenie objektu je kontaktným zatepľovacím systémom v hrúbkach potrebných na dosiahnutie parametrov pre pasívne domy. Zateplenie podláh a strešnej konštrukcie dtto.
Architektonická štúdia 2012
- ZÁKLADNÉ ÚDAJE
počet osôb / počet obytných miestnosti: ..........................................3 osoby / 3 obytné miestností
zastavaná plocha (bez terasy): .......................................................................................102,00 m²
celková úžitková plocha (bez terasy):................................................................................86,80 m²
celková obytná plocha:.......................................................................................................56,20 m²
celkový obostavaný priestor (bez základov a terás):............................................................380 m3
spotreba tepelnej energie: ...............................................................................do 15 kWh/m2 a rok



